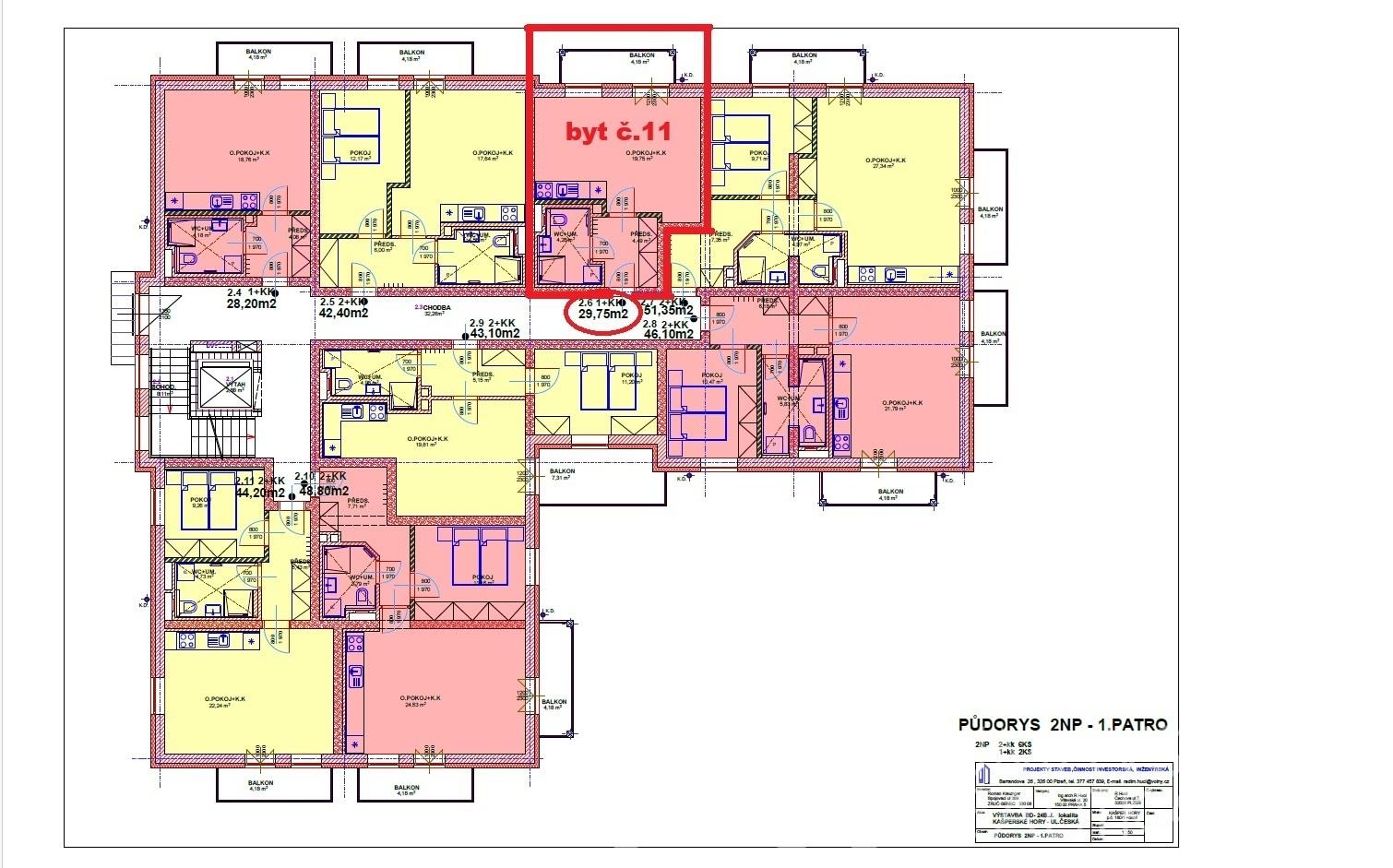
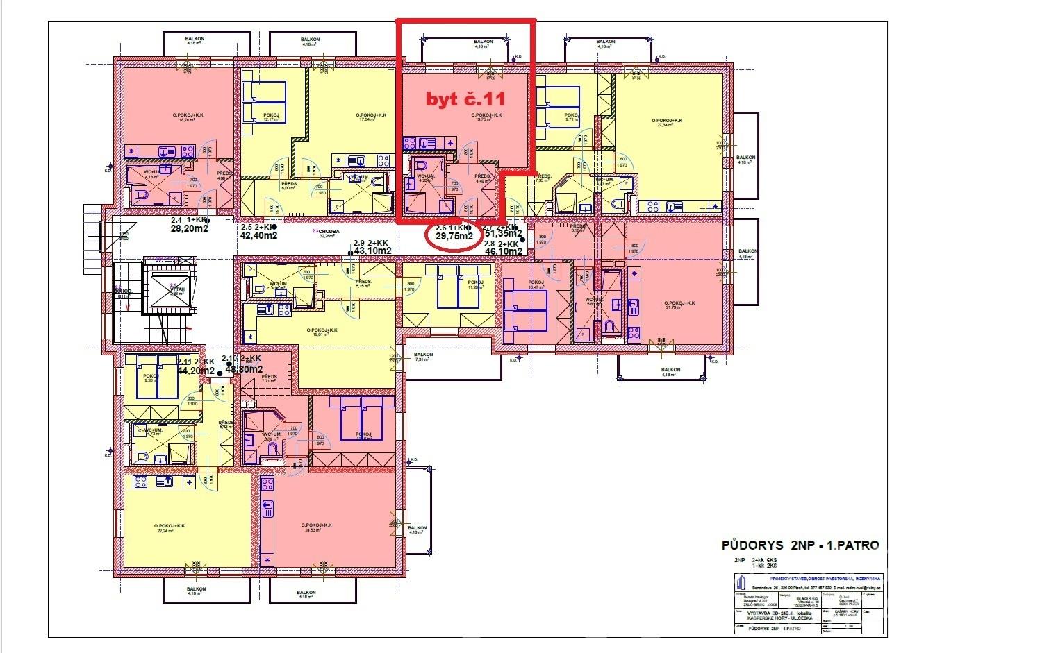
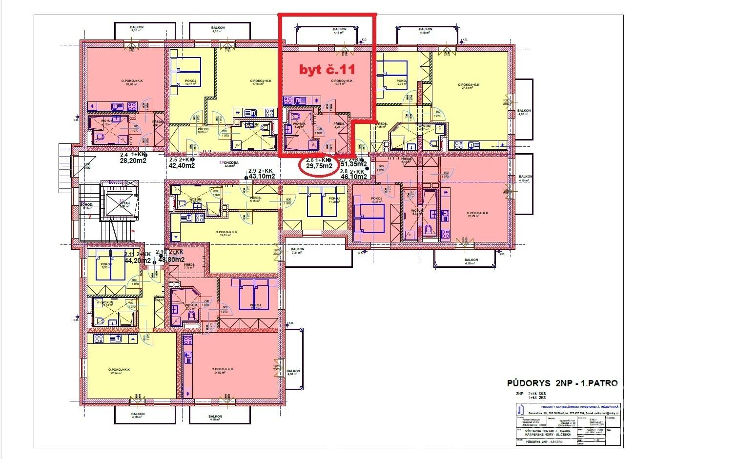
NOVÝ BYT 1+KK S VÝCHODNÍM BALKONEM A VÝHLEDEM NA ŠUMAVU-KAŠPERSKÉ HORY

Seznam nemovitostí
Ev. číslo
2025061
Typ nemovitosti
byt
Dispozice
1+kk
Typ zakázky
prodej
Stav zakázky
aktivní
Lokalita
Česká, Kašperské Hory

Ilona Korcová

Foto Ilona Korcová
Mobil:
+420724834692
Nový byt v Kašperských Horách.
Výrazná sleva pro první zájemce!
Lokalita: ŠUMAVA, KAŠPERSKÉ HORY – nejvýše položené gotické město v Čechách - brána do Šumavského národního parku – v nadm.výšce 750 m n.m. s kompletní infrastrukturou pro malebné a pohodové bydlení i rekreaci na Šumavě. Hotely, restaurace, Šumavské bylinkové lázně. Pro sportovce je k dispozici nová moderní víceúčelová hala, Skiareál s možností večerního lyžování a Šumavský národní park pro cykloturistiku i milovníky bílé stopy.
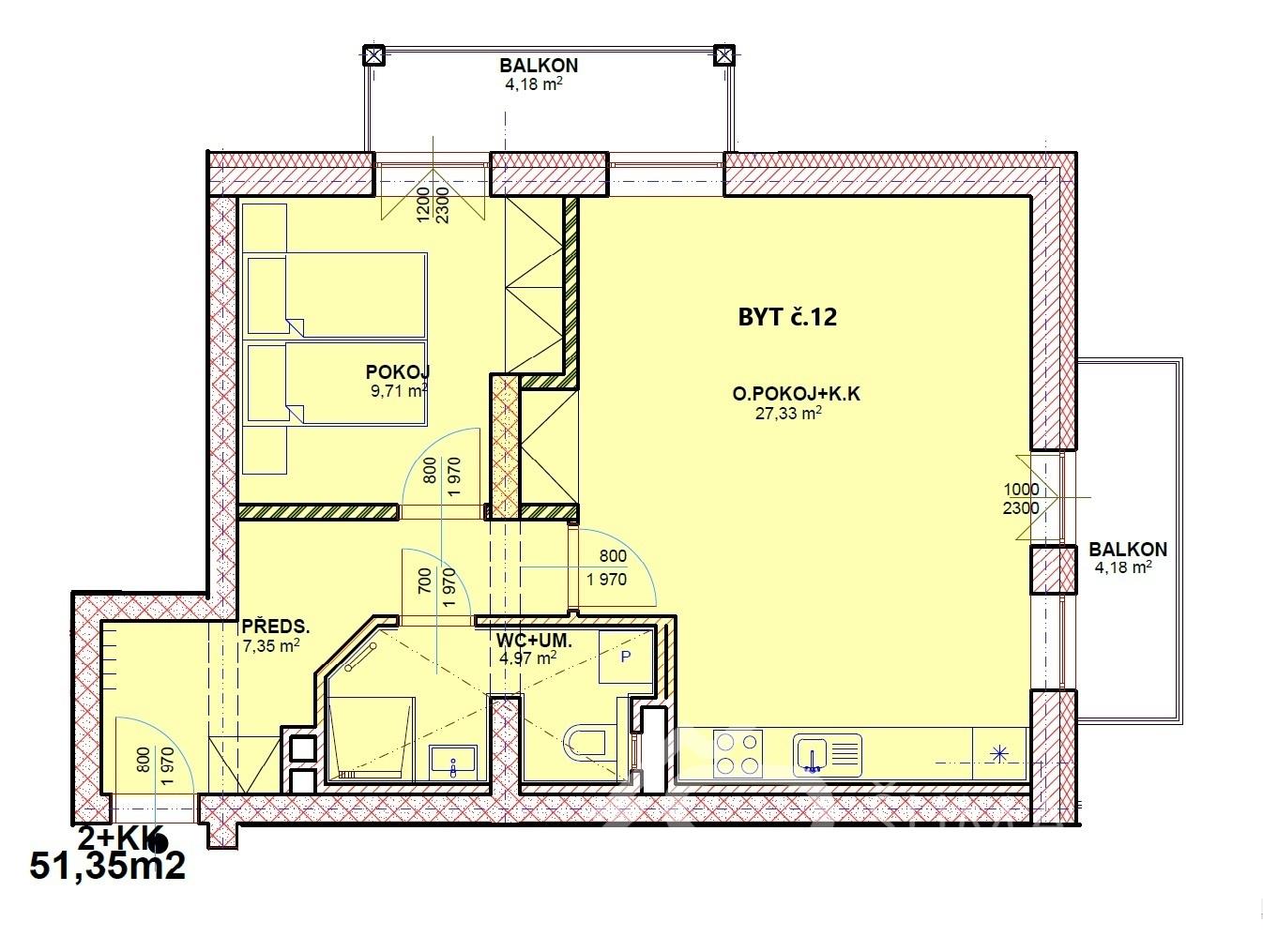
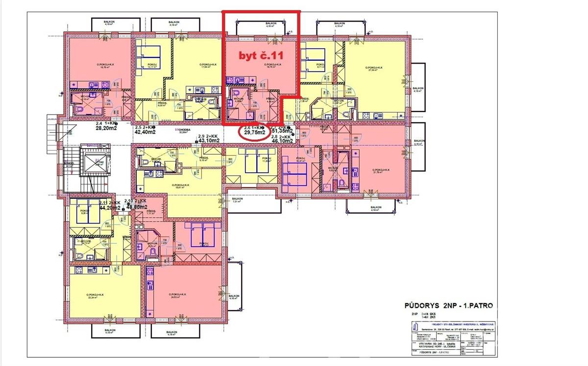
Komfortní apartmán – byt o podlahové ploše 30 m2 do osobního vlastnictví v klasicky zděném domě o 24 bytech vybavené výtahem a to již od suterénu. Realizován podle kvalitního autorského projektu arch. Radima Hucla a dokončeny na jaře 2026. V krásné poloze na jižně orientovaném pozemku, cca 4 min. pěší chůze od náměstí. Součástí této dobré investice je sklep a koupě venkovního parkovacího stání ke každému bytu nebo vnitřního krytého parkovacího stání. Dobře prosvětlený byt s krásným výhledem jsou vybaveny kvalitními standardy. Připojení na městskou výtopnu biomasou, samostatné měření tepla a spotřeby elektřiny v každém bytu. Standardy: podrobné info zašleme na vyžádání. CENY: info v realitní kanceláři u makléřky projektu.
Vlastnictví
osobní
Plocha obytná
30 m2
Plocha užitná
30 m2
Konstrukce
cihla
Stav nemovitosti
novostavba
Patro
1. patro
Kanalizace
městská
Elektřina
230V
Voda
vodovod
Balkon
Ano
Plocha balkonu
4 m2
Terasa
Ne
Sklep
Ano
Plocha sklepa
2 m2
Výtah
Ano
Umístění
klidná část obce
Energetická třída
B - úsporná

Zájem o prohlídku


Nastavení cookies

X

Tato webová stránka používá nezbytné soubory cookie k zajištění správného fungování webu. Sledovací soubory a marketingové používáme k tomu, abychom pochopili, jak se na stránce pohybujete a jaký obsah Vám máme nabídnout. Tyto cookies budou nastaveny až po vašem schválení.