KOMFORTNĚ PLNĚ ZAŘÍZENÝ PROSVĚTLENÝ BYT V NOVÉM DOMĚ – JAVORNÁ – CHKO ŠUMAVA

Seznam nemovitostí
Ev. číslo
002028KH
Typ nemovitosti
byt
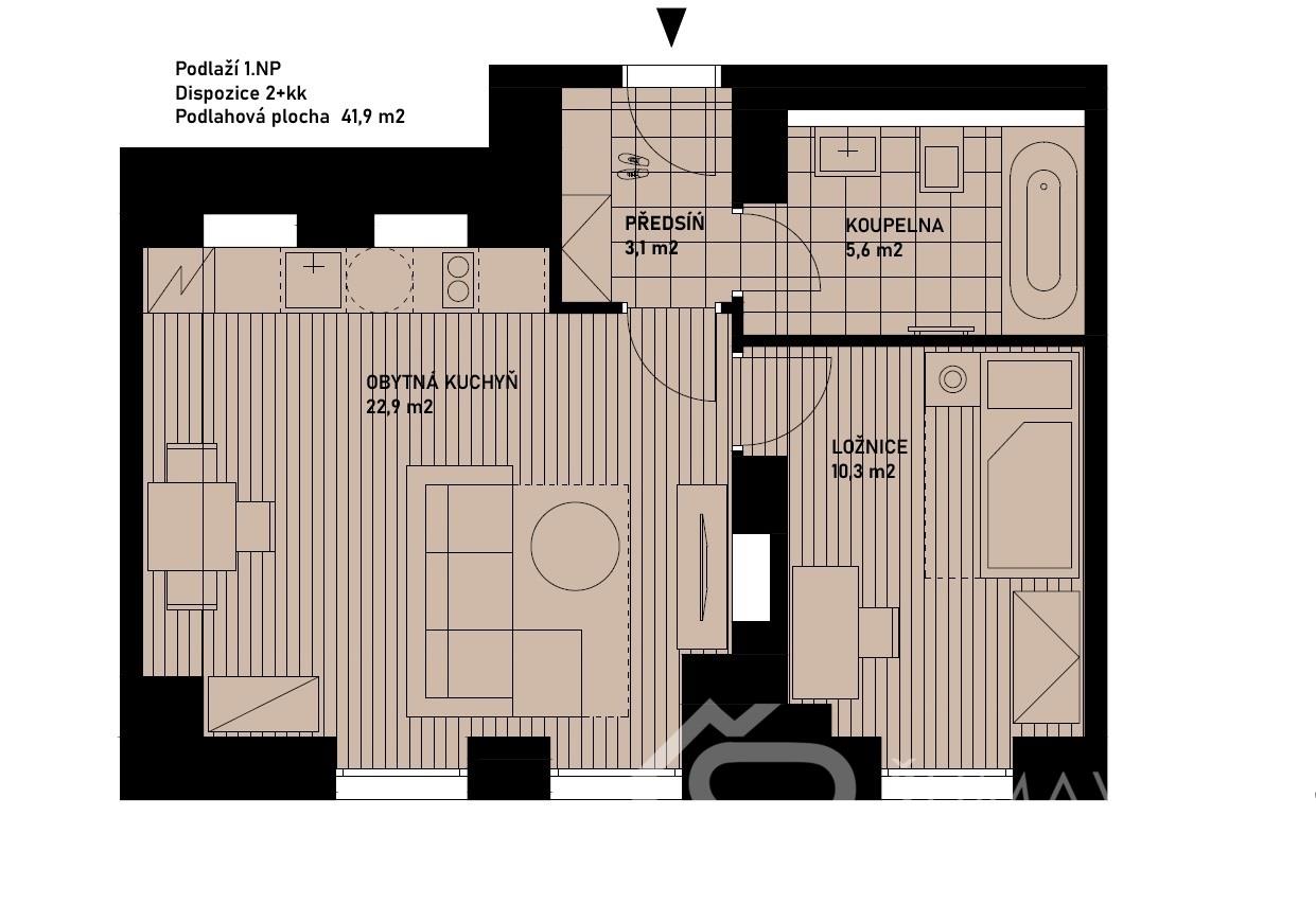
Dispozice
2+kk
Typ zakázky
prodej
Stav zakázky
aktivní
Lokalita
Čachrov
Cena
4,490,000 CZK
Světlý vzdušný apartmán 2+kk o podlahové ploše 42 m2, kompletně plně vybavený.
Lokalita: ŠUMAVA, malebná obec Javorná ležící v CHKO Šumava na spojnici města Klatovy a jen 10 km od známého rekreačního střediska Železná Ruda. V obci jsou dva lyžařské vleky a čtyři sjezdovky o délce 2 km. Svou nadmořskou výškou 850 m n.m. a okolní krajinou je Javorná situována do šumavského podhůří s nádhernou zalesněnou krajinou s úžasnými výhledy do vnitrozemí.
Popis domu: komplexní rekonstrukcí bývalého hotelu vznikl nádherný a moderní bytový dům od architekta nominovaného na Českou cenu za architekturu. Součástí je vlastní zázemí s kolárnou a lyžárnou. Dům má moderní architektonickou tvář, je dokonale zateplený, okna jsou plastová s izolačním trojsklem v antracitovém odstínu. Topení zajišťují tři moderní, inteligentní a účinná tepelná čerpadla vzduch/voda zn. NIBE F 2040. Samozřejmostí je i vlastní parkoviště s vymezeným stání pro jednotlivé byty. Kolaudace domu proběhla v prosinci 2022 a ve dvou objektech je celkem 40 bytových jednotek. Napojen je na obecní vodovod a kanalizaci, zajištěna je i správa domu s úklidem a zimní údržbou parkoviště. Správa domu může dokonce zajistit i komerční pronájem apartmánu v době, kdy by ho vlastník nevyužíval – tím se z apartmánu stává výnosová investice!
Popis apartmánu: světlost, vzdušnost a stylové značkové vybavení je první, co vás upoutá při vstupu do vlastního bytu. Ten se nachází v 1.NP hned vedle relaxační zóny, situovaný je na jihozápad. Dispozičně se jedná o byt 2+kk, kdy v předsíni je vestavěná prostorná šatní stěna s věšáky. Vlevo je vstup do koupelny s vanou a skleněnou zástěnou, bateriemi Hansgrohe, závěsným WC a otopným žebříkem. Obývací pokoj s kuchyňskou linkou i vedlejší samostatná ložnice má bezparapetová okna začínajícími od podlahy – to dodává této místnosti dostatek světla. Podlahová krytina je z vinylu s dekorem dřeva. Kompletní nábytkové vybavení je od firmy Hanák (kuchyňská linka, vestavěná skříň v předsíni, nábytek v obývací místnosti a vestavěné skříně v ložnici). Čalouněný nábytek je od firmy UNAR (rozkládací pohovka s matrací pro každodenní užívání v plné velikosti 180/200 cm, manželská postel v ložnici o velikosti 180/200 cm). Kuchyňská linka je kompletně vybavena spotřebičemi zn. Elektrolux (velká lednička, mrazák, varná deska, mikrovlnná trouba s grilem, velká myčka a digestoř). Součástí je i televizor Samsung. Vytápění je možno ovládat dálkově s aplikací v telefonu, k dispozici je WIFI, Smart TV a vstupní dveře jsou zabezpečeny elektronickým číselným kódem. K dispozici je uzamykatelná lyžárna / kolárna pro valstníky apartmánů. Cena bez povize RK.
Cena: vč. kompletního vybavení.
Vlastnictví
osobní
Plocha obytná
42 m2
Plocha užitná
45 m2
Konstrukce
smíšená
Stav nemovitosti
po rekonstrukci
Patro
1. patro
Elektřina
230V
Voda
vodovod
Terasa
Ne
Kabelová TV
Ano
Sklep
Ne
Umístění
klidná část obce
Zařízeno
zařízeno
Energetická třída
E - nehospodárná

Zájem o prohlídku

 


Nastavení cookies

X

Tato webová stránka používá nezbytné soubory cookie k zajištění správného fungování webu. Sledovací soubory a marketingové používáme k tomu, abychom pochopili, jak se na stránce pohybujete a jaký obsah Vám máme nabídnout. Tyto cookies budou nastaveny až po vašem schválení.