SLUNNÝ BYT 2+KK V NOVÉM BYTOVÉM DOMĚ V KAŠPERSKÝCH HORÁCH-REZERVACE

Seznam nemovitostí
Rezervováno
Ev. číslo
2026007
Typ nemovitosti
byt
Dispozice
2+kk
Typ zakázky
prodej
Stav zakázky
rezervace
Lokalita
Lesní, Kašperské Hory
Cena
5,200,000 CZK
REZERVACE
SLUNNÝ BYT 2+KK V NOVÉM BYTOVÉM DOMĚ V KAŠPERSKÝCH HORÁCH.
Lokalita: Kašperské Hory jsou velice obdivovány turisty, pro které je zde připraveno mnoho poznávacích okruhů a značených turistických cest. Oblíbili si je i cyklisté pro nepřeberné množství náročných i pohodových poznávacích tras po Šumavě a jeho podhůří. Častou zastávku zde mají i automobilisté a motorkáři, vždyť se jedná skoro o jediné město na Šumavě, kde pohodlně zaparkujete, občerstvíte se třeba i v místním pivovaru, nebo se najíte v tak vyhlášených restauracích jako je Nebespán, hotel Kašperk, nebo Baštírna u Tomáše. Milovníci dobré kávy jistě zavítají do místní pražírny. Oblíbené jsou i pro filmaře pro nádhernou okolní krajinu (Policie Modrava) či pro historický nadhled hradu Kašperk (Anděl páně). Oblíbit si je musí i zájemci o historii a to nejen pro nejvýše položený královský hrad, ale i pro 28 nemovitých kulturních památek ve městě a okolí. Oblíbené jsou i pro bohatý kulturní celoroční program se spoustou různorodé hudby a filmových představení. I v zimním období jsou oblíbené pro sjezdaře na místním ski areálu a běžkaře na projížděných bílých stopách.
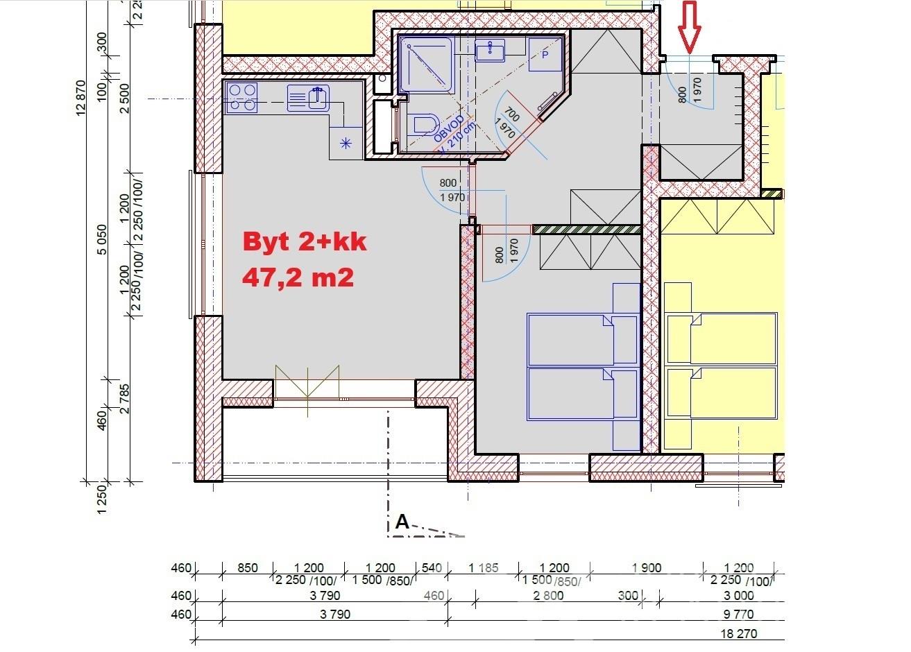
Popis: klasicky zděný bytový dům o 13 bytech byl realizovaný podle kvalitního autorského projektu arch. Radima Hucla. Je vybavený výtahem, v krásné poloze s výhledem na šumavská panoramata v jižně orientovaném pozemku, cca 2 min. pěší chůze od náměstí. Součástí bytu je i venkovní parkovacího stání. Komfortní byt je vybaven kvalitními standardy a výhodou je jižní balkón. Dům je připojen na městskou výtopnu biomasou, byt má samostatné měření tepla, vody a elektřiny. Jedná se o byt ve 2.NP o dispozici 2+kk a podlahové ploše 47 m2. Z chodby vybavené skříní a botníkem jsou vstupy do prostorného a prosvětleného obývacího pokuje s velkou kuchyňskou linkou, jídelním stolem a sedací soupravou. Lodžie s orientací na jih poskytuje výhled na lyžařský areál i možnost pobytu na čerstvém šumavském vzduchu. Samostatná ložnice s jižním oknem může sloužit i jako dětský pokoj. Velkorysá je i koupelna se sprchovým koutem, závěsným WC a pračkou. K bytu je sklepní kóje v přízemí, společná kolárna a jedno soukromé parkovací stání u domu. Objekt je dokonale zateplen a s okny s izolačními trojskly poskytuje perfektní tepelnou pohodu s minimálními náklady na vytápění.
Vlastnictví
osobní
Plocha obytná
45 m2
Plocha užitná
47 m2
Konstrukce
cihla
Stav nemovitosti
novostavba
Patro
1. patro
Kanalizace
městská
Elektřina
230V
Voda
vodovod
Lodžie
Ano
Plocha lodžie
5 m2
Terasa
Ne
Kabelová TV
Ano
Sklep
Ano
Plocha sklepa
2 m2
Výtah
Ano
Umístění
klidná část obce
Energetická třída
B - úsporná

Zájem o prohlídku

 


Nastavení cookies

X

Tato webová stránka používá nezbytné soubory cookie k zajištění správného fungování webu. Sledovací soubory a marketingové používáme k tomu, abychom pochopili, jak se na stránce pohybujete a jaký obsah Vám máme nabídnout. Tyto cookies budou nastaveny až po vašem schválení.